Subthrottle Sensor Resistance
Connections: BL lead [D] ←→ BR/BK lead [C]
Standard: 4
6 kΩ

If the reading is out of the standard, replace the throttle body assy.
If the reading is within the standard, but the problem still exists, replace the ECU (see ECU Removal/Installation in the Fuel System (DFI) chapter).
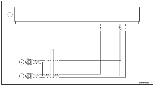
Subthrottle Sensor Circuit

1. ECU
2. Subthrottle Sensor
3. Main Throttle Sensor
Subthrottle Sensor Output Voltage Inspection
Oxygen Sensor - not activated (Service Code 33, Equipped Models)Clutch Plate, Wear, Damage Inspection
Visually inspect the friction and steel plates for signs of
seizure, overheating (discoloration), or uneven wear.
Measure the thickness of each friction plate [A] at several
points.
If any plates show signs of damage, or if they have worn
past the service limit, replace them with new on ...
Immobilizer Amplifier Replacement
Remove the upper fairing assembly (see Upper Fairing
Assembly Removal in the Frame chapter).
Disconnect the connector [A].
Pull out the immobilizer amplifier [B] together with the rubber
protector [C] from the air intake duct [D].
ECU Replacement
Refer to the ECU Removal/Instal ...
Valve Guide Installation
Apply engine oil to the valve guide outer surface before
installation.
Heat the area around the valve guide hole to about 120
150°C (248 302°F).
NOTICE
Do not heat the cylinder head with a torch. This will
warp the cylinder head. Soak the cylinder head and
heat the oil.
Usin ...